
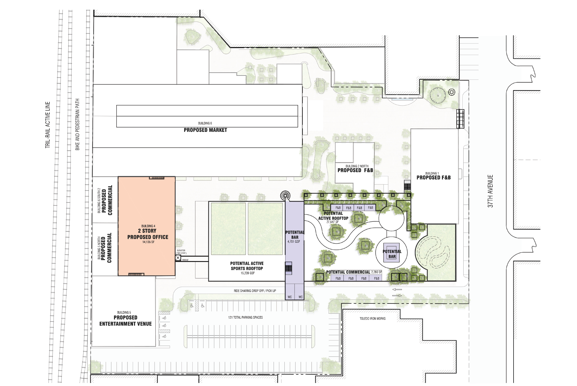
Hialeah Factory Town
Hialeah’s Factory Town was envisioned as a community space centering the work of makers and artists with the aim of revitalizing the city’s industries. The master plan for this lot adaptively reuses the existing industrial complexes in order to create a mixed-use cluster of buildings ranging from maker spaces, markets, retail, entertainment venues, offices, and outdoor recreational spaces.
Hialeah Factory Town fosters a healthy and vibrant community by bringing together residents in a space designed to encourage creativity and socialization. The maker spaces act as the focal point of Factory Town, recalling the industrial history of the space and celebrating craftsmanship and artistry. The inclusion of entertainment venues, recreational spaces, and markets bolsters the program’s community building efforts and creates a community hub that is active day and night. Accessible commute routes to public transit provide connectivity across the community.
Hialeah Factory Town is not solely focused on community programming but also on promoting the community’s wellbeing through sustainable efforts. Access to fresh food, community gardens, and markets provide needed services for the area’s residents. The adaptive reuse of the existing industrial buildings is another sustainable aspect of this project and climate resiliency efforts are aided by the incorporation of green spaces and tree canopies that helps with the cooling of the industrial complexes while providing visual contrast between the natural and the man-made.









.jpeg)